임대인 HJ 전화번호 -
이메일 hojin7200@gmail.com 입주일자 2026-04-01
상위지역 BC 하위지역 랭리
상세주소 211 ST 우편번호 V2Y
타입 하우스 룸타입 1BR
가격 $1,300 보증금 $650
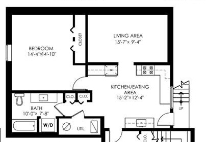
면적 850 Sqft 건축 년도 -
침실(수) 1개 화장실(수) 1개
기본 사항
“조용하고 안전한 동네"를 찾으신다면 저희 집이 정답일 거예요~!! 

관심 있으신 분은 편하게 연락 주세요~~

 

[위치] Langley 윌로비 (83ave와 211st 인근)

Lynn Fripps Elementary School 도보 2분거리, Middle/Secondary 인근 

한남  코스코  월마트  Willoughby Town Centre Mall

Community Centre   CARVOLTH 등 이용 편리

 

[Legal Suite] 큰방1 욕실1 거실 주방  

( 별도 Renovation 되었습니다~ )

냉장고,전자레인지,가스스토브,식기세척기,세탁기,건조기 포함

인터넷서비스 무료 제공

별도출입문 : backyard 지나지않는 Private Entrance 

집앞 스트릿파킹

현재 세입자 거주중입니다~

 

[쇼잉] 즉시(일정협의)

[입주]  4/1 이후 가능

 

[* 세입자 조건 *]

-  렌트비 : 월$1300 + Utility 별도

-  렌트비의 1/2 Deposit 

-  최소 3개월 고정 렌트+이후 한달씩 자동 갱신 

-  주택/대지 내 No Smoking,Vaping,Drugs

-  No Pets

- No sublet / No Home Business

 

-  Tenant Insurance 요망

-  직장레퍼런스,Credit Check (필요시)

 

관심있으시면, 간단한 본인소개와 연락처를 이메일로 보내주시길 부탁드립니다~.

 ( hojin7200@gmail.com )

 

감사합니다~!!