
임대인 | 송용현 | 전화번호 | 7789297515 |
이메일 | syh1116@gmail.com | 입주일자 | - |
상위지역 | BC | 하위지역 | 밴쿠버 |
상세주소 | 611 Regan Avenue, Coquitlam | 우편번호 | V3J 0E5 |
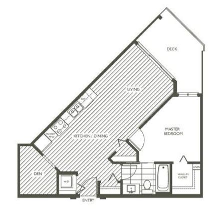
타입 | 콘도/아파트 | 룸타입 | 스튜디오 |
가격 | $2,000 | 보증금 | $1,000 |
면적 | 630 Sqft | 건축 년도 | 2013 년 |
침실(수) | 1개 | 화장실(수) | 1개 |
기본 사항 |
|
Burquitlam Capital 1베드+덴 저층콘도 유닛입니다.
Buqtuilam Skytrain 역 가까이 위치해 교통이 편리합니다. 한인상권 및 Lougheed Town Centre, 공원, 학교그리고 YMCA도 걸어다니실 수 있으며 수퍼마켓도 걸어서 5분거리 안에 있어 생활편의시설을 쉽게 이용하실 수 있습니다.