임대인 Steve 전화번호 778) 2415555
이메일 steve1225@ymail.com 입주일자 2026-07-01
상위지역 BC 하위지역 밴쿠버
상세주소 7928 Yukon St 우편번호 V5X 2Y7
타입 콘도/아파트 룸타입 2BR
가격 $3,800 보증금 $1,900
면적 860 Sqft 건축 년도 -
침실(수) 2개 화장실(수) 2개
기본 사항

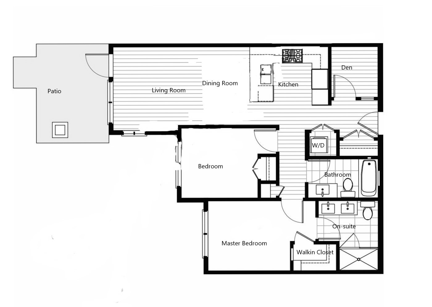
[매물 정보]

  • 위치: South Cambie (Churchill Secondary 학군, 스카이트레인 인접)

  • 구조: 2 침실 + 1 덴 / 2 욕실 (860 sf + 전용 파티오)

  • 입주 가능일: 2026년 7월 1일

  • 희망 렌트료: $3,800 (협의 가능)

 

[주요 특징]

  • 가든 레벨: 넓은 전용 파티오가 있어 개방감이 뛰어나고 야외 공간 활용이 좋습니다.

  • 풀 옵션: 에어컨, Bosch 고급 가전(5구 가스 쿡탑), 3인치 쿼츠 카운터탑.

  • 고급 마감: 전 구역 넓은 판재 나무 바닥 (카펫 없음).

  • 편의 시설: 주차 1대 & 스토리지 1개 포함.

  • 최상 위치: Churchill 세컨더리 학군, 공원, 골프장, T&T, 영화관 인접. (스카이트레인 이용 시 UBC, 공항, 다운타운 15분 내외)

 

[임대 조건]

  • 최소 1년 계약

  • 반려동물 불가, 실내 금연 (No Pets, No Smoking)


 

[신청 방법 - 필수] 본 유닛은 Royal Pacific Realty가 전문렌트합니다. 관심 있으신 분은 담당자 Steve에게 문자(778-241-5555) 또는 이메일을 보내주세요.

⚠️ 아래 정보 미포함 시 회신이 어렵습니다:

  1. 성함 (Full Name)

  2. 직업 (Occupation)

  3. 거주 인원 및 가족 소개

  4. 캐나다 체류 신분 (영주권, 워크퍼밋 등)